Greenmanville Streetscape, Mystic CT

For Mystic Seaport Museum
 
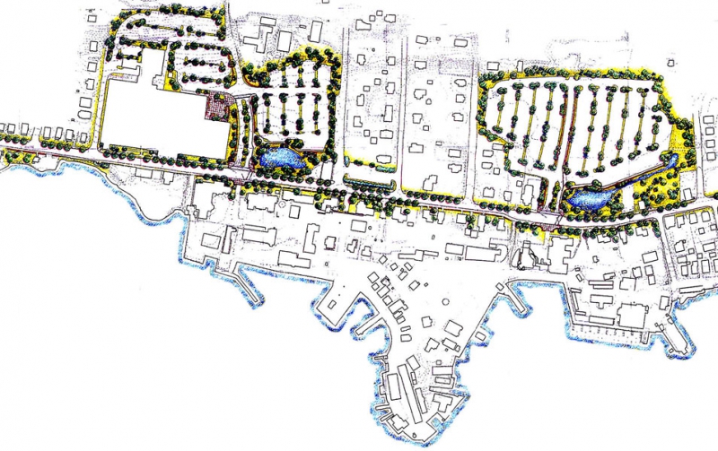
The Mystic Seaport Museum, once the site of the historic Greenman Brothers shipyard, stretches along core area along Route 27, a two-lane, high-volume state route from Interstate 95. Heritage Landscapes assessed the existing conditions of the busy corridor, addressing traffic and pedestrian movement patterns, congestion, and safety. Research into historic character and review of the programmatic needs directed alternative development. The Greenmanville Streetscape project addressed a two-mile corridor along Connecticut Route 27 from Interstate 95, along the Mystic Seaport Museum to reach Old Mystic Village. Project outcomes included:

  • Engage community through alternatives input and selection
  • Strengthen Route 27 heritage tourism for vehicles and arrival
  • Reinforce the distinctive, historic character of the streetscape
  • Upgrade pedestrian interpretation, wayfinding, safety, and enjoyment
  • Reconstruct or repair stone walls, iron and wood fences, sidewalks
  • Design and construct stormwater cleansing wetlands at two parking lots
  • Install streetlights, traffic signs, street furnishings, and lay-by shelters

We designed and supervised construction of two wetlands and parking lots to upgrade ecology and improve the arrival experience. Five turn-out areas for cars arriving in Mystic added visitor arrival information. Today the corridor and museum arrival sequence reveal history and ecology while fully addressing contemporary needs. The corridor improvements were Transportation Enhancement Act funded by Connecticut DOT. The museum and the Town of Stonington appreciate the outcomes of this $1.8 million transportation enhancement project.

 

WORKS:

Route 27 Corridor streetscape, parking lots, wetlands, entries and informational lay-by shelters, design, construction documents and administration to enhance heritage tourism

TEAM:

Heritage Landscapes in collaboration with CLA Engineers Inc.

QUOTES:

"Mystic Seaport Museum, host to 500,000 visitors each year, is especially appreciative of the well-integrated, historically appropriate, attractive, efficient, and safe arrival and streetscape shaped by this project."